Ma Modular - Luna Review

Ma Modular Luna Review, Cost, Floor Plans, and Photos
The Luna is Ma Modular’s most popular home. An open breezeway connects the two primary modules, combining with the glass doors and wide windows to give the home an open feel. The Luna includes 3 bedrooms, 2 bathrooms, and a deck. In total, the home has 1,500 square feet of living space.
The home’s exterior features a mix of fiber cement panels, painted stucco, and horizontal cedar siding. In addition to the M-shaped seam metal roof, a metal grid interspersed with windows hangs over the front of the home to create a unique covered entrance.
The standard interior comes with bamboo flooring, maple or cherry cabinets, tiling, quartz countertops, stainless steel Whirlpool appliances, and artistic lighting fixtures like West Elm globe lights. The interior also features high ceilings, clerestory windows, and a sliding glass door wall that opens onto a spacious deck. The open breezeway and sliding glass doors blend inside and outside elements, creating a spread-out, open floor plan.
Ma Modular Luna Cost
The turn-key cost for Ma Modular’s Luna starts at $412,500. This includes all construction, site work, and delivery costs in Texas. The price of land and premium upgrades are not included in this estimate. The cost of site work, which accounts for about 40-60% of total project costs, will also depend on the price of labor in the buyer’s area.
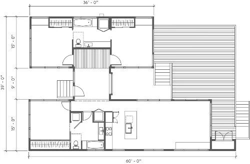
Ma Modular Luna Floor Plan
Ma Modular’s Luna is a 1,500 square foot home with an open L-shaped floor plan. The model includes 3 bedrooms, 2 bathrooms, and a spacious deck. An open breezeway separates the kitchen area and the bedrooms, making the floor plan feel open and well-lit.
Ma Modular Luna Photos
For more information about Ma Modular, read our Ma Modular Review or check out our full list of Ma Modular’s pre-designed homes with cost estimates. If you are interested in building your own Ma Modular Luna home or require project specific assistance, connect with one of our Prefab Concierge representatives.




